Yatırım Danışmanlığı Tamamlanan İşler
BORUSAN HOLDİNG
- KOCAELİ- KARTEPE Uzunçiftlik 300 Dönüm alanda sanayi imar planı geliştirme ve imar uygulamaları


- KOCAELİ – SARAYBAHÇE Yendoğan 65 Dönüm Sanayi planı- Ticaret alanına dönüşüm ve imar uygulamaları

- KOCAELİ – KÖSEKÖY Kumlaçiftliği 145 Dönüm Lojistik imar planı geliştirme ve imar uygulamaları


- SAKARYA – AKYAZI Bediltahirbey 55 Dönüm alanda sanayi imar planı geliştirme ve imar uygulamaları


GARANTİ BANKASI
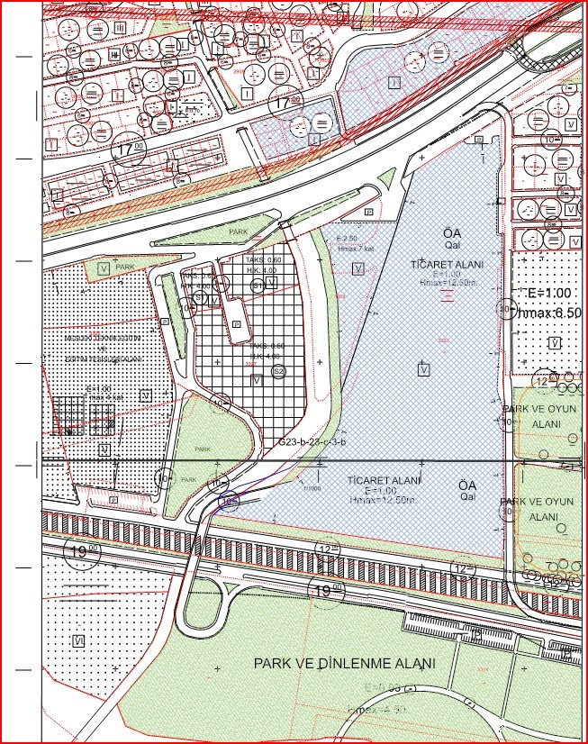
- İSTANBUL- PENDİK -Çamçeşme 60 Dönüm alanda Ticaret imar planı ve Teknoloji Kampüsü projesi geliştirme işi


KREA GROUP (Merrill Lynch)
- İSTANBUL- PENDİK -Kaynarca 50 Dönüm alanda Ticaret imar planı ve AVM projesi geliştirme işi


METRO GROUP
- İSTANBUL- PENDİK -Çamçeşme 30 Dönüm alanda Ticaret imar planı ve AVM projesi geliştirme işi


TSKBGYO (Türkiye Sınai Kalkınma Bankası)
- İSTANBUL- PENDİK -Çamçeşme 32 Dönüm alanda Ticaret imar planı ve AVM projesi geliştirme işi

